Flyway Sanctuary
Kiawah Island, South Carolina
Construction by River Creek Construction
Front Elevation
Side Elevation
Side Elevation
Rear Elevation
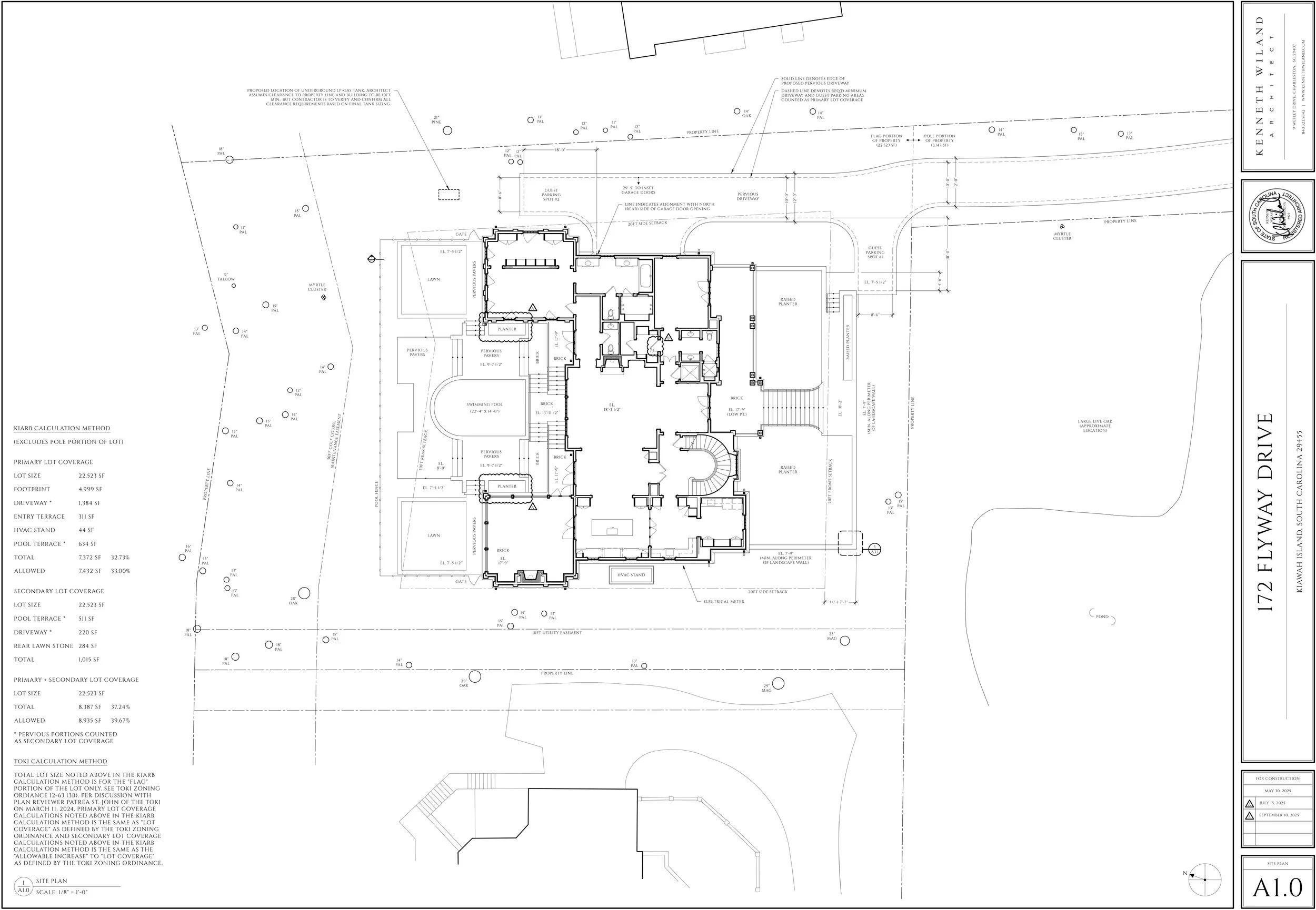
Site Plan
Floor Plan
Floor Plan
Exterior Elevations
Exterior Elevations
Building Sections
Exterior Details
Exterior Details
Exterior Details




